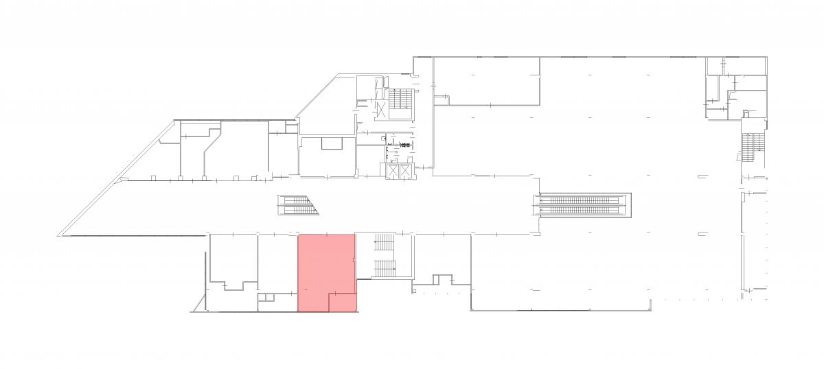
Сдаётся в аренду торговое помещение 89,5 м² в ТРК «Шкиперский Молл» на 2 этаже
Отличное предложение на Васильевском острове! Просторное помещение на 2 этаже современного торгово-развлекательного комплекса с высокой проходимостью.
Главные преимущества:
Идеальное расположение: Васильевский остров, Малый пр. ВО, д. 88. Всего 15 минут пешком от метро «Приморская».
Готовый трафик: Высокая посещаемость гарантирована благодаря расположенным рядом сетевым магазинам и современному кинотеатру на этаже.
Несколько входов: Максимальная доступность для клиентов благодаря отдельному входу, входу прямо из галереи ТЦ .
Всё подключено: Помещение полностью подготовлено: электроэнергия, отопление, освещение. Доступны услуги интернета, телефонии и круглосуточной охраны.
Условия аренды:
Площадь: 89,5 м²
Ставка: 2780 руб./м² (включая НДС)
Коммунальные услуги: оплачиваются дополнительно.
Договор: бессрочный.
Стоимость аренды 248 810 рублей в месяц
Обновлен: 19/09/2025
Код объекта: 7896
