На Воскресенской набережной группа компания "Еврострой" построит жилой комплекс премиум-класса "Приоритет". Клубный дом будет семиэтажным монолитно-кирпичным со стеклянной мансардой. Здание выполнят по проекту архитектурной студии Intercolomnium Евгения Подгорнова.
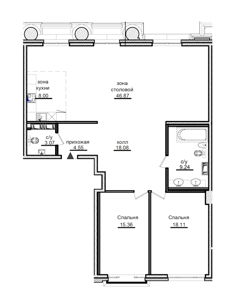
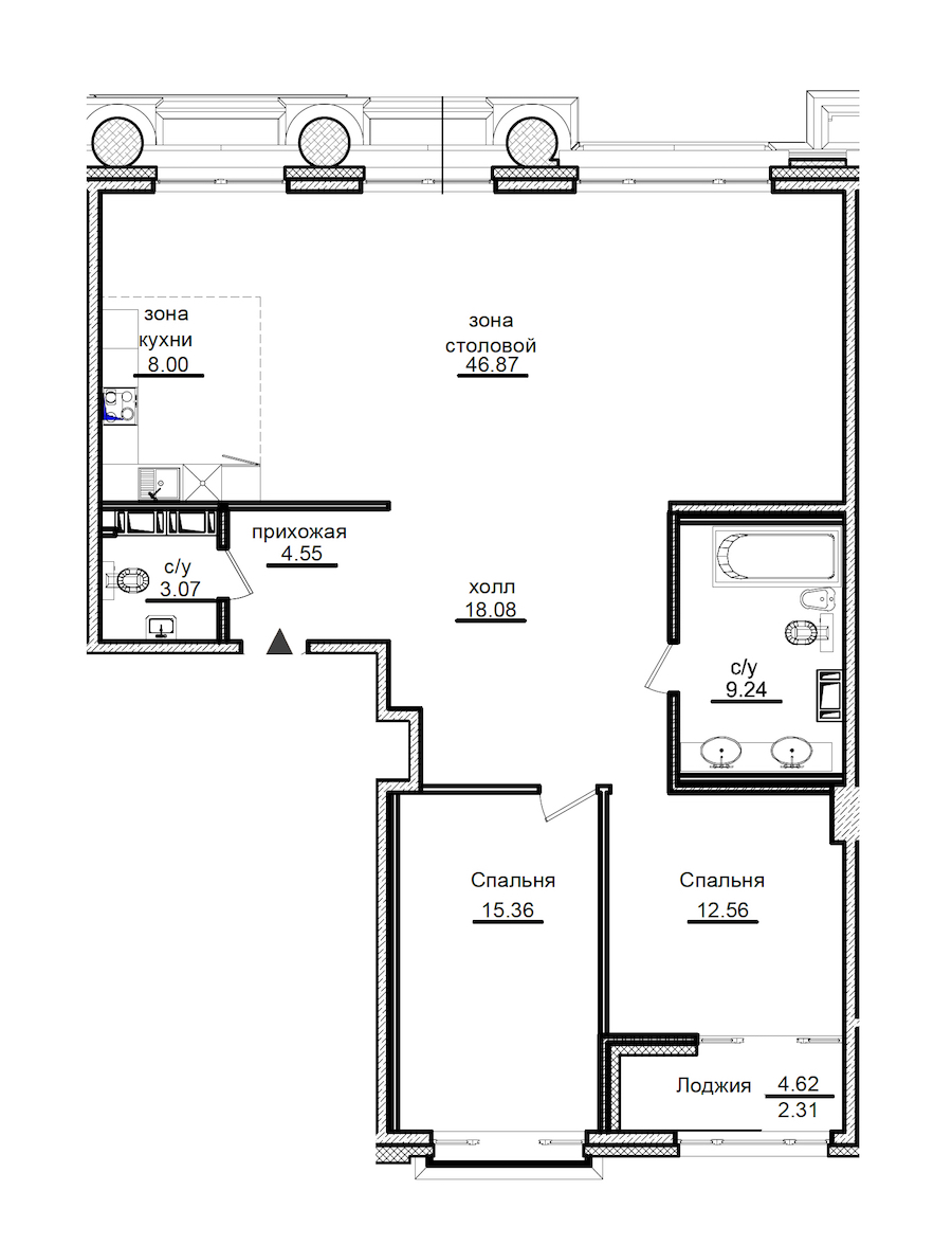
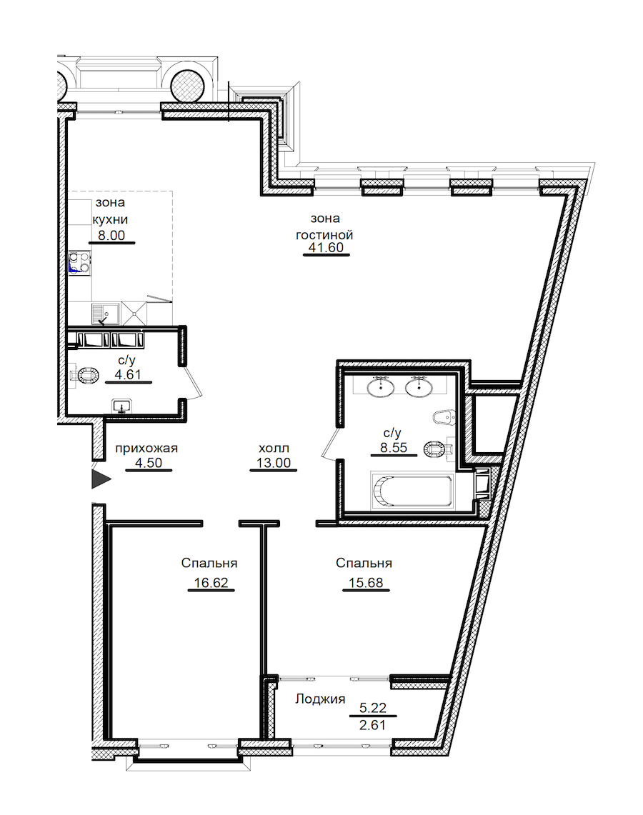
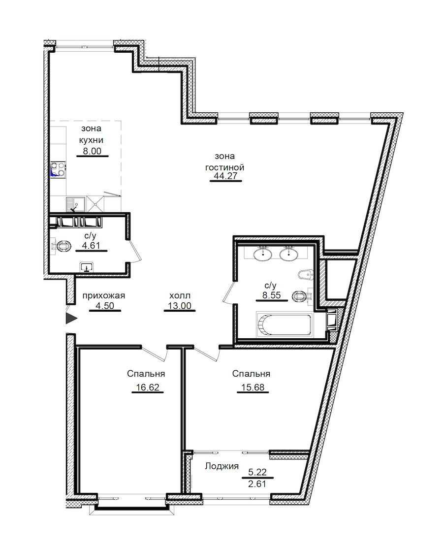
В "Приоритете" большинство квартир будут с видом на акваторию Большой Невы и центр города — Петропавловскую крепость и стрелку Васильевского острова. Жилье предлагается площадью от 90 до 250 квадратов. Всего в доме 40 квартир — двух-, трех- и четырехкомнатные.
На первом этаже откроются кинозал, ресторан массажный и маникюрный кабинеты, предусмотрены лобби-бар и сигарная комната. В холлах будет дежурить круглосуточная служба портье, в услуги которой входит химчистка, уборка в квартирах, доставка еды и вызов такси.
Два уровня под домом отведены под паркинг на 45 машиноместа, из расчета на 40 семей, проживающих в доме. Во дворе проведут озеленение и установят детскую игровую площадку.
ЖК "Приоритет" расположен в Центральном районе. Инфраструктура здесь отлично развита, но состояние экологии страдает из-за недостатка парков и изобилия транспорта на дорогах.
Новостройка одним из фасадов будет выходить на Воскресенскую набережную, поэтому жителям большинства квартир откроются виды на реку Нева. С другой стороны окна выходят на Летний дворец Петра І и парковую зону, с третьей — на Преображенский собор. В пешей доступности Михайловский и Таврический сады, несколько скверов.
Инфраструктура района на хорошем уровне. Рядом школа № 185, детские сады, театр на Литейном. До торговых центров "Невский пассаж", "Большой Гостиный Двор" и "Гранд Палас" 10 минут езды.
От комплекса до Невского проспекта 2,5 километра. По Воскресенской набережной находятся выезды на Литейный и Троицкий мосты. Первый соединяет Центральный район с Калининским, второй мост — с Петроградской стороной.
ЖК "Приоритет" расположен в Центральном районе. Инфраструктура здесь отлично развита, но состояние экологии страдает из-за недостатка парков и изобилия транспорта на дорогах.
Новостройка одним из фасадов будет выходить на Воскресенскую набережную, поэтому жителям большинства квартир откроются виды на реку Нева. С другой стороны окна выходят на Летний дворец Петра І и парковую зону, с третьей — на Преображенский собор. В пешей доступности Михайловский и Таврический сады, несколько скверов.
Инфраструктура района на хорошем уровне. Рядом школа № 185, детские сады, театр на Литейном. До торговых центров "Невский пассаж", "Большой Гостиный Двор" и "Гранд Палас" 10 минут езды.
От комплекса до Невского проспекта 2,5 километра. По Воскресенской набережной находятся выезды на Литейный и Троицкий мосты. Первый соединяет Центральный район с Калининским, второй мост — с Петроградской стороной.
Собираетесь купить квартиру в ЖК Приоритет от "Еврострой"? Позвоните нам!
АО Торговый Дом Недвижимости сотрудничает только с надежными застройщиками Санкт-Петербурга и Ленинградской Области.
Мы ежедневно собираем информацию о ходе строительства Жилых Комплексов Санкт-Петербурга, а также проверяем благонадёжность застройщиков. Наша команда уже больше 10 лет занимается рынком строящейся недвижимости, не было ни одной сделки оспоренной в суде. Наши клиенты получают ключи вовремя!
Наличие квартир в ЖК Приоритет, актуальные цены, скидки и акции застройщика Аквилон-Инвест в нашем офисе. Звоните! Мы рады помочь сделать правильный выбор.
Услуги агентства Торговый Дом Недвижимости по подбору, проверке документов, сопровождению сделки по покупке квартиры в новостройках Санкт-Петербурга и Ленинградской Области - бесплатны.
